Description
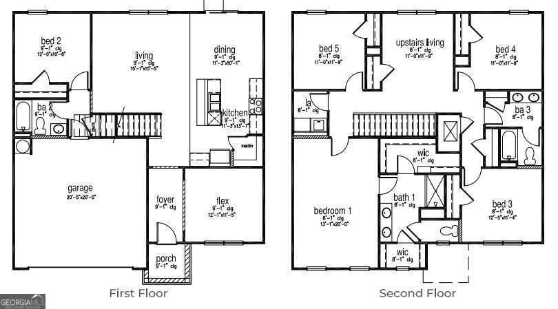
Quick Move-In! Ready NOW! Guest Suite on Main! Upstairs Loft and a Front porch! Welcome to Rice Hope - Port Wentworth's highly sought after resort style amenity rich neighborhood! Amazing 5 Bedroom, 3 Bath 2-story w/ Perfect Open Floorplan! Large Kitchen w/ Granite Countertops, Stainless-Steel Appliances including Center Island, & Walk-In Pantry is Open to spacious Dining Area & Living Room! Privately Located Primary Suite features LARGE Walk-In Closet & Double Vanity Bath w/ Walk-In Shower! 4 Large Secondary Bedrooms. Guest Bedroom & Full Bath on Main Level! This home boasts Quartz Countertops throughout, 9 Ceilings on main level, 42" Cabinets w/ Upgraded Hardware, 5 1/4" Baseboards, Smart Home Technology & 2" Faux Wood Blinds. Builders warranty! Pictures, photographs, colors, features and sizes are for illustration purposes only and will vary from the homes as built. Ask how to receive up to $8,500 towards closing cost & below market interest rate w/ use of preferred lender!
-
5BEDS
-
0.13ACRES
-
3BATHS
-
01/2 BATHS
-
2,511SQFT
-
$163$/SQFT
School Information
Description
Quick Move-In! Ready NOW! Guest Suite on Main! Upstairs Loft and a Front porch! Welcome to Rice Hope - Port Wentworth's highly sought after resort style amenity rich neighborhood! Amazing 5 Bedroom, 3 Bath 2-story w/ Perfect Open Floorplan! Large Kitchen w/ Granite Countertops, Stainless-Steel Appliances including Center Island, & Walk-In Pantry is Open to spacious Dining Area & Living Room! Privately Located Primary Suite features LARGE Walk-In Closet & Double Vanity Bath w/ Walk-In Shower! 4 Large Secondary Bedrooms. Guest Bedroom & Full Bath on Main Level! This home boasts Quartz Countertops throughout, 9 Ceilings on main level, 42" Cabinets w/ Upgraded Hardware, 5 1/4" Baseboards, Smart Home Technology & 2" Faux Wood Blinds. Builders warranty! Pictures, photographs, colors, features and sizes are for illustration purposes only and will vary from the homes as built. Ask how to receive up to $8,500 towards closing cost & below market interest rate w/ use of preferred lender!
Related Properties
© 2025 Georgia Multiple Listing Service, Inc. All rights reserved. The data relating to real estate for sale or lease on this web site comes in part from GAMLS. Real estate listings held by brokerage firms other than The Bradley Sikes Group | Meybohm Real Estate are marked with the GAMLS logo or an abbreviated logo and detailed information about them includes the name of the listing broker. IDX information is provided exclusively for consumers' personal, non-commercial use and may not be used for any purpose other than to identify prospective properties consumers may be interested in purchasing. Information is deemed reliable but is not guaranteed accurate by GAMLS or The Bradley Sikes Group | Meybohm Real Estate. Data last updated: 2025-11-17T00:09:15.68.